Nos avis clients
Nos avis clients
0

VIEUX PAYS - 5 CHAMBRES -ENORME POTENTIEL

Aulnay-sous-Bois (93600)
Réf : 626

RARE SUR LE MARCHE - Cette maison de plus de 130m2 habitables, avec pas moins de 5 chambres, va combler votre grande famille !

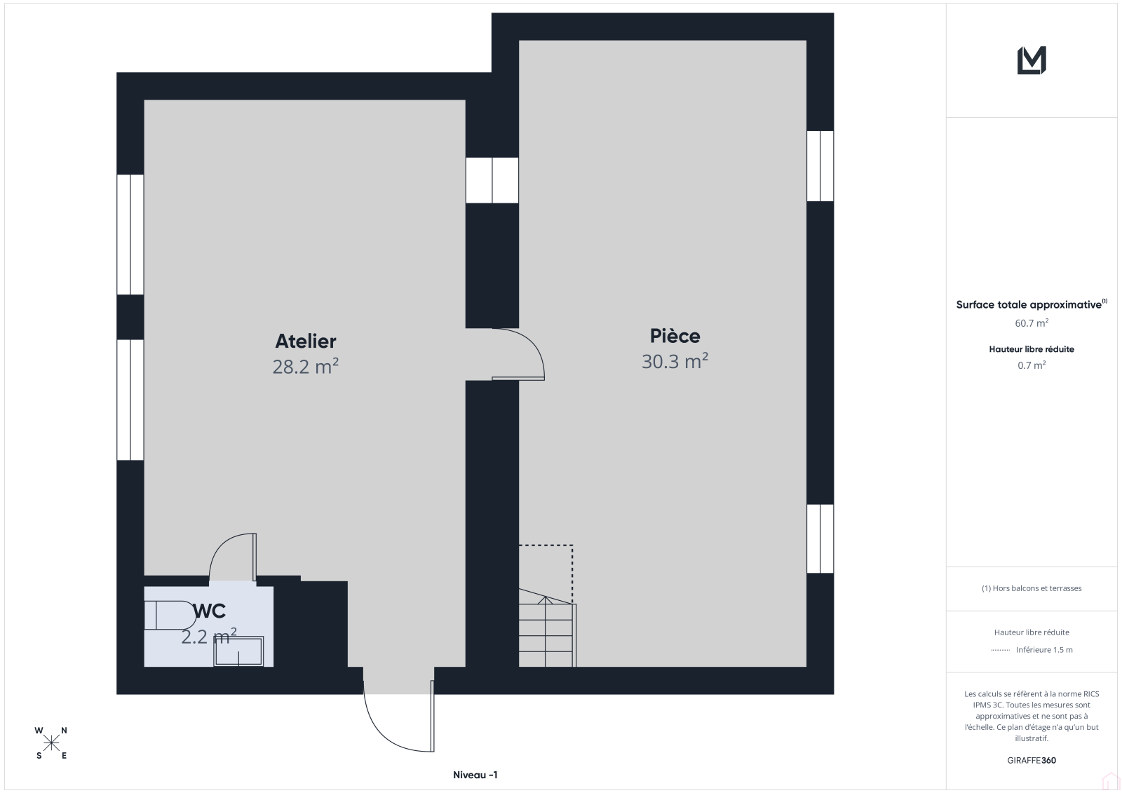
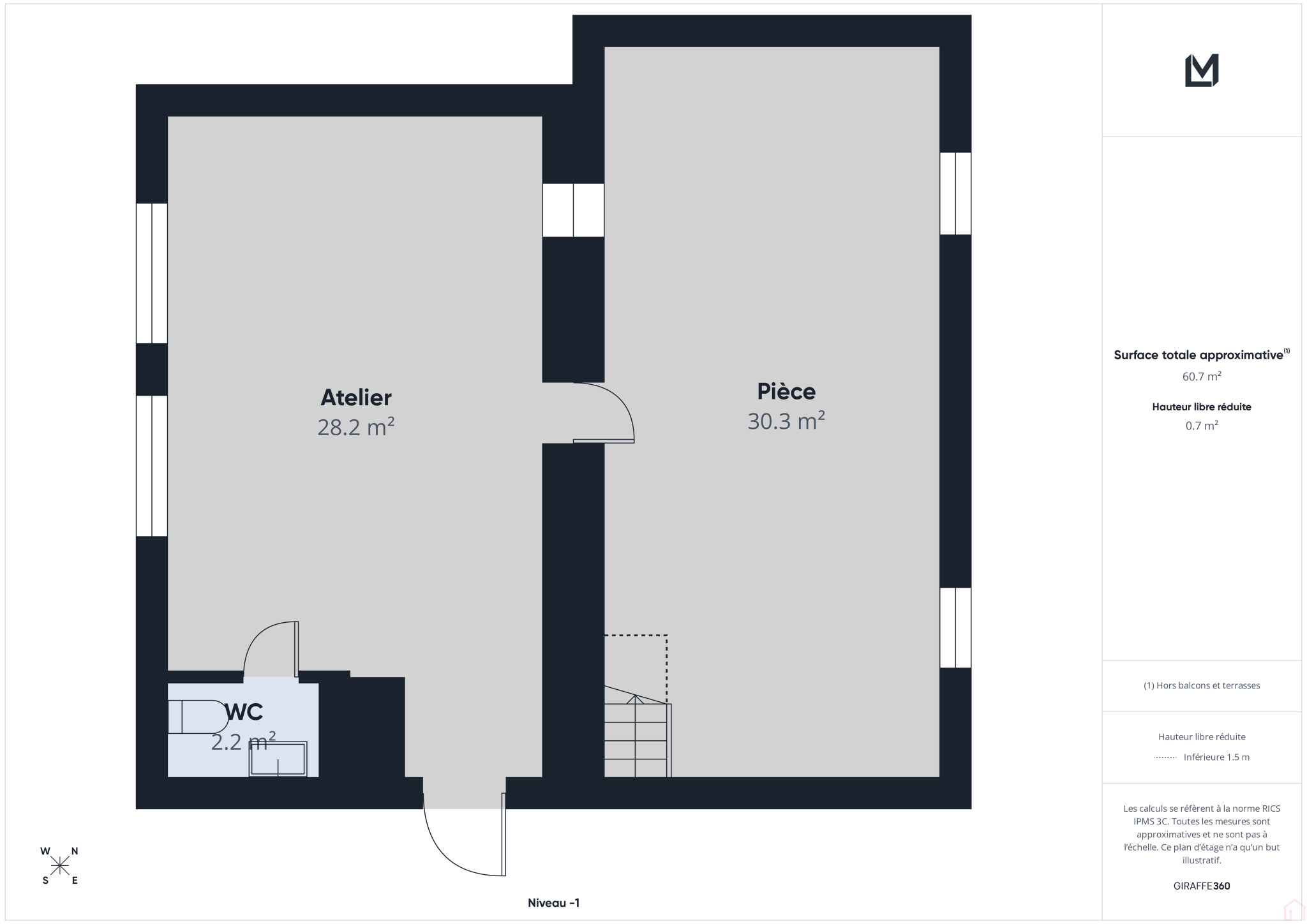
Cette maison de 225m2 de surface au sol, édifiée sur sous-sol total vous propose au RDC :

Une entrée, une pièce à vivre de plus de 45m2 avec salon-séjour dinatoire, un espace salon cosy avec poële à bois, une cuisine séparée et équipée, une salle d'eau et WC séparés.

A l'étage, le palier dessert 4 chambres (toutes de bonnes tailles), une salle de bains ainsi que des WC séparés.

Les combles sont aménagés et accessibles, pour offrir une 5ème chambre ou un espace bureau.

Enfin le sous-sol total est un vrai plus ! Plus de 60m2 d'espace de stockage, d'atelier et WC. Le terrain et le jardin fait tout le tour de la maison, sans aucun vis à vis !

Située dans une impasse dans le secteur du Vieux Pays, au calme absolue, cette maison indépendante vous offre un énorme potentiel, une maison où l'on peut se projetter pour très longtemps !

Avec un rafraichissement au goût du jour, elle paraîtra sous son meilleur jour. Une visite s'impose !


Classe énergétique D, classe climat D. Montant estimé des dépenses annuelles d'énergie : entre 2400€ et 3310€ (prix indexés au 1er janvier 2021).

Risques : Les informations sur les risques auxquels ce bien est exposé sont disponibles sur le site www.georisques.gouv.fr.

Annonce diffusée par Mermier Jean-Baptiste, agent commercial immobilier immatriculé au RSAC de Bobigny sous le numéro 889 194 544. Mandataire habilité par La Maison - Transactions Immobilières , titulaire de la carte professionnelle n°CPI 9301 2017 000 016 341, délivrée par la CCI Paris Ile-de-France.

découvrir le bien
Prix du bien 319 000 €
Pièce(s) 7
Chambre(s) 5

Caractéristiques du bien

Caractéristiques Valeurs
Code postal 93600
Surface habitable (m²) 130,70 m²
surface terrain 337 m²
Nombre de chambre(s) 5
Nombre de pièces 7
Nombre de niveaux 3
Nb de salle de bains 1
Nb de salle d'eau 1
Cuisine Séparée
Type de cuisine Equipée
Mode de chauffage Gaz, Electrique, Bois, Bois
Type de chauffage Chaudiere, Convecteur, Poêle, Poêle
Format de chauffage Individuel, Individuel, Individuel, Individuel

Infos financières

Caractéristiques Valeurs
Prix de vente 319 000 €
Les honoraires d'agence seront intégralement à la charge du vendeur  
Taxe foncière annuelle 1 877 €

Bilans énergétiques

DPE GES
Ce bien vous intéresse ?
Fieldset par défaut
Fieldset par défaut
Validation

* Champs obligatoires

Contacter l'agence
Validation
Les informations recueillies sur ce formulaire sont enregistrées dans un fichier informatisé par La Boite Immo agissant comme Sous-traitant du traitement pour la gestion de la clientèle/prospects de l'Agence / du Réseau qui reste Responsable du Traitement de vos Données personnelles. La base légale du traitement repose sur l'intérêt légitime de l'Agence / du Réseau. Elles sont conservées jusqu'à demande de suppression et sont destinées à l'Agence / au Réseau. Conformément à la loi « informatique et libertés », vous disposez des droits d’accès, de rectification, d’effacement, d’opposition, de limitation et de portabilité de vos données. Vous pouvez retirer votre consentement à tout moment en contactant directement l’Agence / Le Réseau. Consultez le site https://cnil.fr/fr pour plus d’informations sur vos droits. Si vous estimez, après avoir contacté l'Agence / le Réseau, que vos droits « Informatique et Libertés » ne sont pas respectés, vous pouvez adresser une réclamation à la CNIL. Nous vous informons de l’existence de la liste d'opposition au démarchage téléphonique « Bloctel », sur laquelle vous pouvez vous inscrire ici : https://www.bloctel.gouv.fr Dans le cadre de la protection des Données personnelles, nous vous invitons à ne pas inscrire de Données sensibles dans le champ de saisie libre.
Ce site est protégé par reCAPTCHA, les Politiques de Confidentialité et les Conditions d'Utilisation de Google s'appliquent.

Localisationdu bien